سازه مسکونی سه طبقه


در مسیری که صنعت ساختمان‌سازی به دنبال راهکارهای نوین، سریع و پایدار برای ساخت‌وساز است، استفاده از سازه‌های کانتینری به عنوان یک رویکرد نوآورانه و کارآمد، جایگاه ویژه‌ای یافته است. شرکت بام ایده‌آل آفرینش با طراحی و اجرای اولین سازه کانتینری در ایران، گامی بزرگ در این مسیر برداشته و در جایگاه پیشگام این صنعت نوپا در کشور قرار گرفته است.

پیش از آغاز فرایند مدل‌سازی و طراحی عددی سازه‌های کانتینری، بررسی میدانی کانتینرها و مطابقت آن‌ها با نقشه‌های موجود امری ضروری بود. نتایج این بررسی‌ها نشان داد که استانداردهای بین‌المللی مانند CSC و ISO تنها به تعریف ابعاد کلی و وزن مجاز کانتینرها بسنده کرده‌اند و در واقع، سازندگان می‌توانند با پروفیل‌های مختلف به تولید کانتینر بپردازند. همین موضوع منجر به وجود تفاوت‌های جزئی در نقشه‌های سازه‌ای کانتینرهای تولیدشده توسط شرکت‌های گوناگون شده است.

با توجه به اهمیت ارزیابی عملکرد مقاومتی اجزای کانتینرها، تیم فنی پروژه، اقدام به بررسی فولاد به‌کاررفته در بدنه کانتینرها کرد. برای این منظور، شش قطعه از دیواره یک کانتینر با ضخامت‌های ۲ و 1/6 میلی‌متر به آزمایشگاه سازه دانشگاه صنعتی امیرکبیر منتقل شد. نمونه‌ها پس از رنگ‌زدایی، طبق استانداردASTM E8 به صورت کوپانی تهیه و تحت آزمایش کشش قرار گرفتند. این آزمایش با استفاده از دستگاه کشش یونیورسال سنتام و با دقت بسیار بالا انجام شد. نتایج حاصل از این تست‌ها حاکی از آن بود که مقاومت کششی فولادهای به‌کاررفته در این کانتینرها کاملاً در چارچوب ضوابط حداقلی فولادCOR-TEN قرار می‌گیرد

پس از انجام بررسی‌های اولیه، از هر دو رویکرد مدل‌سازی میکرو و ماکرو برای تحلیل رفتار کانتینر استفاده شده است؛ به‌طوری‌که مدل‌های میکرو به منظور بررسی دقیق رفتار، شناسایی نقاط ضعف و مودهای خرابی نمونه به‌کار رفته‌اند، در حالی که مدل‌سازی ماکرو برای تحلیل رفتار کلی و طراحی یک نمونه ساختمانی مورد استفاده قرار گرفته است. برای مدل‌سازی میکرو از نرم‌افزار LS-DYNA و برای مدل‌سازی ماکرو از نرم‌افزار ETABS استفاده شده است. پس از اطمینان از صحت عملکرد مدل ماکرو در مقایسه با مدل میکرو، فرآیند مدل‌سازی کل ویلای سه‌طبقه، شامل سه کانتینر در هر طبقه (در مجموع ۹ کانتینر)، در نرم‌افزار ETABS انجام گرفت. نما و پلان این ویلا در شکل‌های زیر قابل مشاهده است.

با توجه به طرح معماری سازه، ساختمان پیشنهادی از کنار هم قرار گرفتن ۹ کانتینر با کاربری مسکونی شکل گرفته است. با در نظر گرفتن نیازهای عملکردی این نوع کاربری، لازم است بخش‌هایی از دیواره‌های جانبی کانتینرهای مجاور بریده شوند تا فضای داخلی پیوسته و مناسب برای سکونت فراهم گردد همچنین لازم است برای ایجاد در و پنجره بازشوهایی در دیواره‌های پیرامونی نیز ایجاد شود. با توجه به نقش باربر دیواره‌ها در تحمل بارهای ثقلی و جانبی، و در پی نتایج به‌دست‌آمده از تحلیل‌های عددی انجام شده و تست‌های آزمایشگاهی موجود، این برش‌ها منجر به تضعیف عملکرد سازه‌ای خواهند شد. بنابراین، بررسی و انتخاب گزینه‌های مؤثر برای تقویت نواحی بازشو در دیوارهای داخلی و پیرامونی، امری ضروری تلقی می‌شود.

در این راستا، متخصصان شرکت بام ایده‌آل آفرینش با تکیه بر مطالعات گسترده و بررسی انواع سناریوهای بازشو در دیواره‌های داخلی و پیرامونی، تحلیل‌های عددی دقیق و فرآیند بهینه‌سازی مهندسی، راه‌حل‌هایی مؤثر و اجرایی ارائه داده‌اند که با حداقل تغییر در پیکربندی کانتینرها یا افزایش غیرضروری در وزن و هزینه تقویت، طرحی مقاوم در برابر بارهای جانبی و ثقلی حاصل شود؛ طرحی که در عین حفظ کارایی معماری، تمامی الزامات سازه‌ای و لرزه‌ای مندرج در استانداردهای ملی را نیز برآورده می‌سازد. شایان ذکر است که در فرآیند تقویت المان‌های قابی، دیواره‌های موج‌دار، نواحی پیرامون بازشوها و اتصالات بین کانتینرها از طریق کرنر فیتینگ‌ها، علاوه بر استفاده از مدل‌های نرم‌افزاری پیشرفته، تجربیات پروژه‌های اجرایی موفق در خارج از کشور، پیشنهادهای ارائه‌شده در مقالات علمی معتبر و الزامات استاندارد IBC نیز مدنظر قرار گرفته است.


نمایش مدل سه بعدی سازه مسکونی


🔄 با کشیدن، مدل را بچرخانید

🔍 با اسکرول، زوم کنید

🔼🔽 با کلیدهای جهت‌نما، زاویه را تغییر دهید

لطفا منتظر بمانید ...

سازه مسکونی U شکل


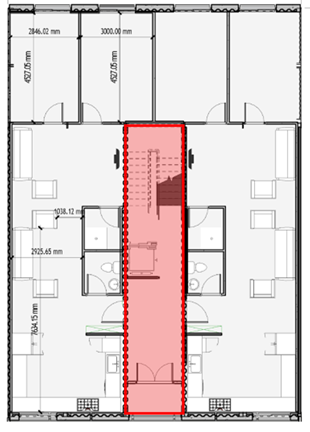
شرکت بام ایده‌آل آفرینش در ادامه مسیر نوآورانه خود، گامی فراتر برداشته و پروژه‌ای متمایز با طراحی یک ساختمان سه‌طبقه با پلان U شکل، متشکل از ۶ کانتینر در هر طبقه (در مجموع ۱۸ کانتینر)، ارائه کرده است. در این پروژه، پلان معماری به‌گونه‌ای طراحی شده که تمامی تأسیسات مکانیکی، مسیر راه‌پله و آسانسور از قسمت میانی سازه عبور کنند (قسمت هاشورخورده در شکل زیر). این رویکرد هوشمندانه نه تنها کارایی فضا را بهبود بخشیده، بلکه امکان جداسازی سازه و بهره‌برداری مجدد از کانتینرها را با سهولت و حداقل آسیب‌دیدگی فراهم می‌آورد؛ به‌گونه‌ای که امکان بهره‌برداری از کانتینرها در پروژه‌های دیگر فراهم می‌شود. با این حال، این پروژه با چالش‌های ویژه‌ای در حوزه طراحی لرزه‌ای روبه‌رو است که نیاز به تدابیر فنی خاصی را ایجاب می‌کند. از جمله مهم‌ترین چالش‌ها، نامتقارنی ذاتی پلان U شکل و تأثیرات نامطلوب آن بر عملکرد لرزه‌ای سازه بود. در چنین پلان‌هایی، توزیع نامتوازن جرم و سختی می‌تواند موجب تمرکز نیروها، افزایش پیچش و بروز تغییرمکان‌های نامتقارن در حین زلزله شود. این موضوع، به‌ویژه در ساختمان‌های کانتینری که به دلیل محدودیت‌های ذاتی در ابعاد مقاطع قابی و اتصال تیر-ستون اهمیت بیشتری پیدا می‌کند.

برای مواجهه با این چالش، تیم فنی بام ایده‌آل آفرینش، یکی از روش‌های مؤثر و پذیرفته‌شده در مهندسی سازه و زلزله را به کار گرفت: تقسیم‌بندی سازه از طریق ایجاد درز انقطاع. این رویکرد باعث شد که پلان U شکل به چند بخش ساده‌تر و متقارن‌تر تفکیک شود. در نتیجه، رفتار لرزه‌ای سازه بهبود یافته، توزیع نیروها متعادل‌تر شده و میزان تغییرمکان‌های نامتقارن به طور قابل توجهی کاهش یافت. با اعمال درز انقطاع، پلان کلی این ساختمان U شکل به سه پلان مستطیلی شکل مجزا مطابق شکل زیر تقسیم می‌شود:

هر یک از این ساختمان‌ها به‌صورت مجزا در نرم‌افزار تحلیل شده و با اعمال تقویت‌های لازم، برای هرکدام طرحی قابل قبول از منظر الزامات استانداردهای ملی حاصل شده است. از آنجا که این ساختمان‌ها به کمک درز انقطاع از یکدیگر جدا شده‌اند، اهمیت کنترل پدیده تنه‌زدن در طراحی برجسته می‌شود.

تنه‌زدن به پدیده برخورد ساختمان‌های مجاور در اثر زلزله، ناشی از عدم رعایت فاصله کافی بین آن‌ها اطلاق می‌شود؛ پدیده‌ای که می‌تواند رفتار دینامیکی سازه‌ها را تحت تأثیر قرار داده و نیروهای مضاعف و مخربی را به اعضای سازه‌ای وارد کند.با توجه به تفاوت‌های موجود در جرم و سختی ساختمان‌های مختلف، رفتار دینامیکی آن‌ها تحت اثر زلزله متفاوت خواهد بود و در مودهای ارتعاشی مختلف، ممکن است ساختمان‌های مجاور به یکدیگر نزدیک شده و دچار برخورد شوند. بنابراین، پیش‌بینی فاصله ایمن میان ساختمان‌های مجاور برای جلوگیری از این نوع آسیب، امری ضروری است.

بر اساس الزامات استاندارد ۲۸۰۰ ایران، رعایت حداقل فاصله ایمن بین ساختمان‌ها الزامی بوده و باید به‌طور دقیق محاسبه و در طراحی لحاظ شود. در این راستا، درزهای انقطاع را می‌توان با استفاده از مصالح کم‌مقاومت پر کرد تا در صورت وقوع زلزله، این مصالح به‌راحتی تخریب شده و بدون آسیب جدی به اجزای اصلی سازه، امکان ترمیم و بهسازی فراهم شود. مطابق استاندارد 2800، برای ساختمان‌های هشت طبقه و کمتر با اهمیت متوسط، فاصله هر طبقه از زمین یا ساختمان مجاور باید حداقل 005/0 ارتفاع آن طبقه از روی تراز پایه باشد. بنابراین در این پروژه فاصله درز انقطاع برابر با 9 سانتی‌متر بدست می‌آید.